Projecte d’obra nova d’habitatge unifamiliar amb piscina
Autors:
Sergi Martí Malgosa i Albert Martí Malgosa
Equip / Col·laboradors:
Pere Zapata, calculista estructural
114 Lux, il·luminació
Kioto Creative Studio, S.L, fotografía
Detalls:
Superfície 310 m2
Promotor Privat
Any 2021
Memòria:
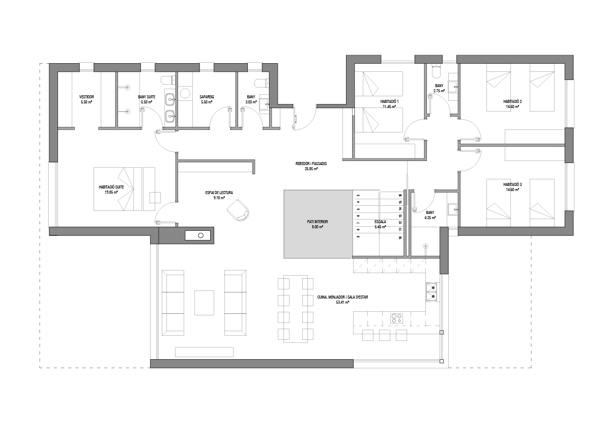
Situada a Matadepera, en una parcel·la de 860 m2 amb bona orientació, la propietat ens encarrega la construcció d’un habitatge en un sol nivell, energèticament efi cient i podent conservar les vistes a La Mola i a Montserrat. A part de l’habitatge, a la parcel·la s’hi projecta una piscina, un garatge soterrat amb espai per a tres vehicles, i es dissenya tot el jardí molt acuradament. El programa de necessitats i la demanda dels clients per a que tots els espais siguin exteriors, ens genera un gran volum, per simplifi car-lo s’ha dissenyant un jardí interior que ajuda a il·luminar tots els espais de l’habitatge, facilitant les circulacions, i inclús fent arribar llum natural al soterrani. El disseny de l’habitatge és estratègic i juntament amb la façana ventilada fan que la casa estigui en una temperatura de confort tot l’any i tingui una mínima demanda energètica inferior a 15 kW/ m² any. Algunes d’aquestes estratègies, ventilació creuada, voladís de protecció solar entre equinoccis, ens ajuden a aconseguir augmentar considerablement el confort de l’usuari.





























